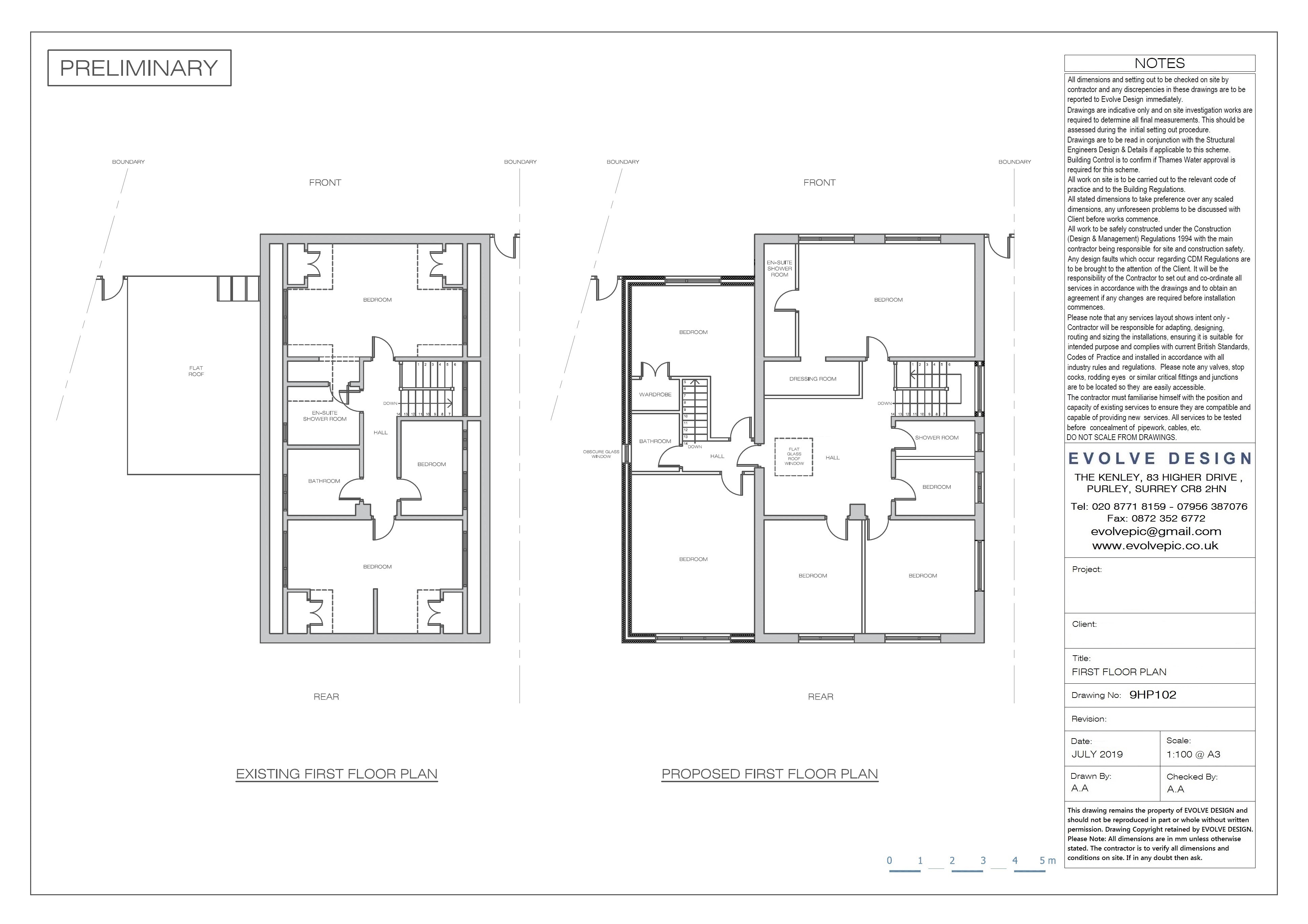
See below construction completed, approved planning design of a project for side two storey extension + single storey rear extension + front single storey extension + loft conversion with rear dormer extension to a semi-detached house in Surbiton, in borough of Kingston, Surrey.

